Tipo de Trabajo
Segregación de vivienda
Segregación de vivienda
Carrer Casp 176, Barcelona
123,8 m2
61,900 €
2015 – Finalizado

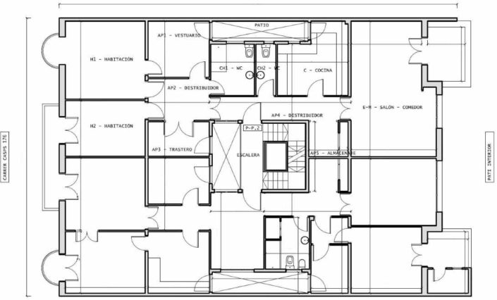
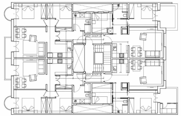
La vivienda existente está emplazado en un edificio en la calle Casp de Barcelona, esta se dividió en dos para crear una nueva vivienda.
Antes del proyecto, esta vivienda constaba de 123,80 m2 de superficie construida repartida en 4 habitaciones, 2 baños, trastero, cocina y comedor. En el proyecto se consideró la restauración de las carpinterías existentes.
OFICINA PRINCIPAL BARCELONA
Carrer Ortigosa 14, Ático-3a
08003 Barcelona, Cataluña, España
Horario:
L-V: 09:00 a 17:00
Tel. +34 93 011 81 88
OFICINA LLEIDA

Carrer Avinyó – Proyecto de RedistribuciónUna cookie o galleta informática es un pequeño archivo de información que se guarda en cada vez que visitas nuestra página web. Algunas cookies son nuestras y otras pertenecen a empresas externas que prestan servicios para nuestra página web.
Las cookies pueden ser de varios tipos: las cookies técnicas son necesarias para que nuestra página web pueda funcionar. Otras de cookies sirven para mejorar nuestra página, personalizarla o mostrarte publicidad ajustada a tus búsquedas e intereses. Puedes aceptar todas estas cookies pulsando el botón ACEPTAR o configurarlas o rechazar su uso clicando en el apartado CONFIGURACIÓN DE COOKIES.
Si quieres más información, consulta la Política de cookies de nuestra página web.
Bienvenida/o a la información básica sobre las cookies de la página web responsabilidad de la entidad: Fractal Project, SL
Una cookie o galleta informática es un pequeño archivo de información que se guarda en tu ordenador, "smartphone" o tableta cada vez que visitas nuestra página web. Algunas cookies son nuestras y otras pertenecen a empresas externas que prestan servicios para nuestra página web.
Las cookies pueden ser de varios tipos: las cookies técnicas son necesarias para que nuestra página web pueda funcionar, no necesitan de tu autorización y son las únicas que tenemos activadas por defecto.
El resto de cookies sirven para mejorar nuestra página, para personalizarla en base a tus preferencias, o para poder mostrarte publicidad ajustada a tus búsquedas, gustos e intereses personales. Puedes aceptar todas estas cookies pulsando el botón ACEPTAR o configurarlas o rechazar su uso clicando en el apartado CONFIGURACIÓN DE COOKIES.
Si quieres más información, consulta la POLÍTICA DE COOKIES de nuestra página web.
Para que nuestra página web pueda funcionar. Activadas por defecto.
Las cookies técnicas son estrictamente necesarias para que nuestra página web funcione y puedas navegar por la misma. Este tipo de cookies son las que, por ejemplo, nos permiten identificarte, darte acceso a determinadas partes restringidas de la página si fuese necesario, o recordar diferentes opciones o servicios ya seleccionados por ti, como tus preferencias de privacidad. Por ello, están activadas por defecto, no siendo necesaria tu autorización al respecto.
A través de la configuración de tu navegador, puedes bloquear o alertar de la presencia de este tipo de cookies, si bien dicho bloqueo afectará al correcto funcionamiento de las distintas funcionalidades de nuestra página web.
COOKIES DE ANÁLISIS
Para la mejora continua de nuestra página web. Puedes activarlas o desactivarlas.
Las cookies de análisis nos permiten estudiar la navegación de los usuarios de nuestra página web en general (por ejemplo, qué secciones de la página son las más visitadas, qué servicios se usan más y si funcionan correctamente, etc.).
A partir de la información estadística sobre la navegación en nuestra página web, podemos mejorar tanto el propio funcionamiento de la página como los distintos servicios que ofrece. Por tanto, estas cookies no tienen una finalidad publicitaria, sino que únicamente sirven para que nuestra página web funcione mejor, adaptándose a nuestros usuarios en general. Activándolas contribuirás a dicha mejora continua.
Puedes activar o desactivar estas cookies marcando la casilla correspondiente, estando desactivadas por defecto.
COOKIES DE FUNCIONALIDAD Y PERSONALIZACIÓN
Para mejorar la funcionalidad y personalización de nuestra página web en base a tus preferencias. Puedes activarlas o desactivarlas.
Las cookies de funcionalidad nos permiten recordar tus preferencias, para personalizar a tu medida determinadas características y opciones generales de nuestra página web, cada vez que accedas a la misma (por ejemplo, el idioma en que se te presenta la información, las secciones marcadas como favoritas, tu tipo de navegador, etc.).
Por tanto, este tipo de cookies no tienen una finalidad publicitaria, sino que activándolas mejorarás la funcionalidad de la página web (por ejemplo, adaptándose a tu tipo de navegador) y la personalización de la misma en base a tus preferencias (por ejemplo, presentando la información en el idioma que hayas escogido en anteriores ocasiones), lo cual contribuirá a la facilidad, usabilidad y comodidad de nuestra página durante tu navegación.
Puedes activar o desactivar estas cookies marcando la casilla correspondiente, estando desactivadas por defecto.
COOKIES DE PUBLICIDAD
Para mejorar la gestión de la publicidad mostrada en nuestra página web, a fin de que sea más útil y diversa, y menos repetitiva. Puedes activarlas o desactivarlas.
Las cookies de publicidad nos permiten la gestión de los espacios publicitarios incluidos en nuestra página web en base a criterios como el contenido mostrado o la frecuencia en la que se muestran los anuncios.
Así por ejemplo, si se te ha mostrado varias veces un mismo anuncio en nuestra página web, y no has mostrado un interés personal haciendo clic sobre él, este no volverá a aparecer. En resumen, activando este tipo de cookies, la publicidad mostrada en nuestra página web será más útil y diversa, y menos repetitiva.
Puedes activar o desactivar estas cookies marcando la casilla correspondiente, estando desactivadas por defecto.
COOKIES DE PUBLICIDAD COMPORTAMENTAL
Para mostrarte publicidad ajustada a tus búsquedas, gustos e intereses personales. Puedes activarlas o desactivarlas.
Las cookies de publicidad comportamental nos permiten obtener información basada en la observación de tus hábitos y comportamientos de navegación en la web, a fin de poder mostrarte contenidos publicitarios que se ajusten mejor a tus gustos e intereses personales.
Para que lo entiendas de manera muy sencilla, te pondremos un ejemplo ficticio: si tus últimas búsquedas en la web estuviesen relacionadas con literatura de suspense, te mostraríamos publicidad sobre libros de suspense.
Por tanto, activando este tipo de cookies, la publicidad que te mostremos en nuestra página web no será genérica, sino que estará orientada a tus búsquedas, gustos e intereses, ajustándose por tanto exclusivamente a ti.
Puedes activar o desactivar estas cookies marcando la casilla correspondiente, estando desactivadas por defecto.
Utilizamos diferentes servicios que utilizan cookies de funcionalidad y personalización, análisis, publicidad y publicidad comportamental:
Google Analytics:
Google Webfonts:
Google reCaptcha:
Vídeos incrustados de Vimeo y Youtube:
Google Maps y otras cookies publicitarias:
Puedes leer más información sobre nuestra política de privacidad y de cookies:
- Política de privacidad
- Política de cookies
